Makléř: Šmakalová Klára
Telefon: 800 100 ...
E-mail: info@mm ...
Zobrazit celý kontaktTelefon: 800 100 446
E-mail: info@mmreality.cz
Nemovitost nabízí
M&M reality holding a.s.
Krakovská 1675/2, 110 00 Praha 1
Zobrazit kontakt na RK800 100 446
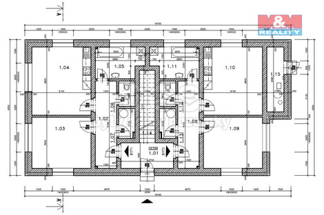
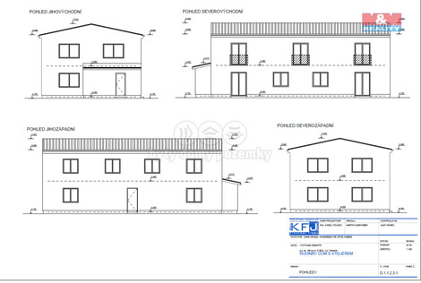
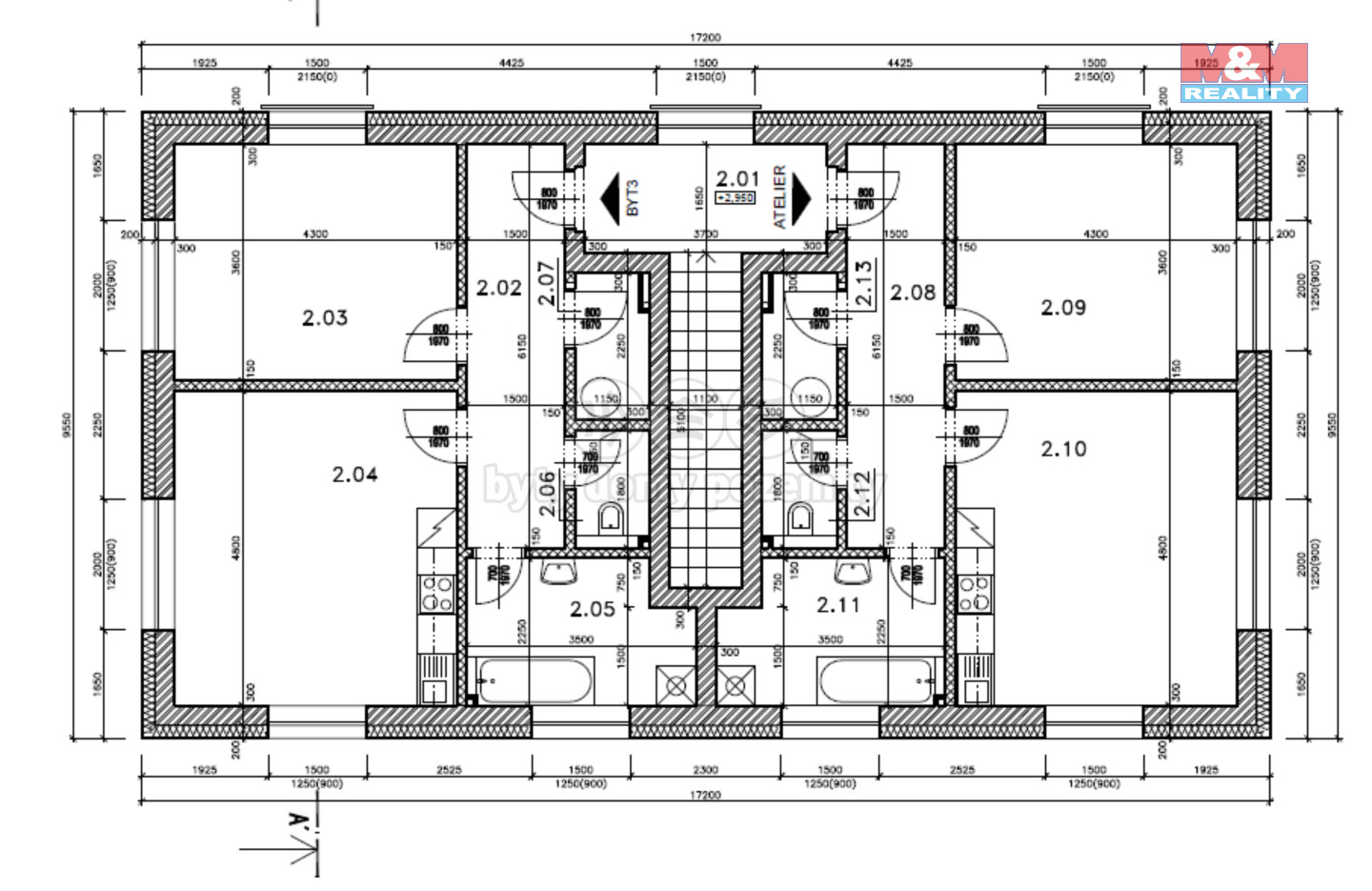
Zajímavá investiční příležitost. Prodej stavebního pozemku o výměře 682 m2 ve městě Černošín s potenciálem pro výstavbu domu o třech bytových jednotkách + atelier. Návrh situačního plánu počítá s výstavbou domu se třemi samostatnými bytovými jednotkami o dispozici 2+kk a atelierem. V 1NP se nacházejí 2 byty s dispozicí 2+kk, každý o výměře 55,4 m2 a technická místnost, ve 2NP se nachází 1 byt s dispozicí 2+kk o výměře 56,9 m2 a atelier o celkové výměře 56,9 m2. Pozemek je částečně rovinatý i svažitý s možností napojení na inženýrské sítě: elektřinu, obecní vodovod a kanalizaci. Na pozemku se nachází stavba s číslem popisným, která je vhodná k demolici. Obec Černošín poskytuje základní občanskou vybavenost přímo na místě: školka, škola, praktický lékař, pošta, úřad, obchody, restaurace a sportoviště. Pro kompletní občanskou vybavenost stačí dojet do města Stříbro, které je vzdálené pouhých 12 km. Pro více informací, detailní situační plánek a sjednání prohlídky kontaktujte makléře.
Prodej pozemku k bydlení, 1004 m2, v Pytlově - Černošín
Nabízíme k prodeji pozemek o velikosti 1004 m2 v obci Pytlov okr. Tachov s výhledem do krajiny. Pozemek je rovinatý přilehlý ke komunikaci.…
Prodej pozemku v malebné lokalitě u Dolského potoka
Prodej pozemku v malebné lokalitě u Dolského potoka Na třetí fotografii je vidět výhled, který je pouze 30 m od pozemku. Nabízíme k prodeji…